Подробнее о фундаменте для деревянных каркасных домов можно прочитать в статье "Проектирование свайно-винтового фундамента".
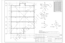
Состав проекта фундамента (КР):
- Общие данные;
- Схема расположения свай;
- Чертеж характерного разреза с указанием уровня заглубления сваи;
- Схема усиления свайного поля (при необходимости);
- Схема расположения ростверка (обвязочного бруса).
Ниже представлен фрагмент рабочего проекта раздела КР (свайно-винтовой фундамент):
