Подробнее о фундамента для деревянных каркасных домов можно прочитать в статье "Проектирование свайно-винтового фундамента".
Состав проекта фундамента:
- Общие данные;
- Схема площадки строительства;
- Схема укрепления откосов;
- Схема выпусков канализации и водоснабжения;
- Схема расположения утеплителя;
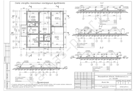
- Схема опалубки монолитных конструкций фундамента;
- Схема армирования монолитного ж/б фундамента;
- Спецификация на монолитный ж/б фундамент;
- Ведомость деталей;
- Ведомость объемов работ.
Ниже представлен фрагмент рабочего проекта раздела КЖ (монолитная железобетонная плита):
