Введение
У многих людей, не связанных с проектной деятельностью, складывается впечатление, что в процессе проектирования нет ничего сложного, стоит создать лишь модель в определенной программе и распечатать чертежи. Но мало кто задумывается, что помимо модели здания, профессиональный проектировщик занимается расчетом конструкций и узлов их соединений, под каждый проект подбирает оптимальные проектные решения, прорабатывая несколько их вариантов, и только после этого выдает готовую проектную документацию заказчику.
В статье будет раскрыта тема расчетов деревянных конструкций, что является неотъемлемой частью процесса проектирования каркасных домов и создания проектной документации.
Дерево — один из древнейших строительных материалов, сохраняющий актуальность благодаря экологичности, доступности и эстетике. Однако проектирование деревянных конструкций требует тщательных расчётов. Ошибки могут привести к деформациям, снижению срока службы или даже обрушениям. В статье разберём, зачем нужны расчёты, какие особенности древесины учитывать и на чём основываться при проектировании.
Зачем нужен расчёт деревянных конструкций?
1. Обеспечение безопасности
Главная цель — гарантировать, что конструкция выдержит эксплуатационные нагрузки (снег, ветер, вес людей, мебели). Без расчётов невозможно определить предельную несущую способность элементов.
2. Предотвращение деформаций
Древесина подвержена усушке, короблению и ползучести (медленной деформации под нагрузкой). Расчёты помогают минимизировать эти эффекты.
3. Экономия материала
Грамотный расчёт позволяет оптимизировать сечение элементов, избежав перерасхода древесины.
4. Соответствие нормам
Строительные стандарты (СП 64.13330.2017, СП 20.13330.2016) регламентируют методы расчёта. Их соблюдение — обязательное условие для легализации проекта.
| Разрушение деревянного каркасного здания | Потеря прочности бруса из-за скалывания древесины |
| Линейный раскрой (оптимизатор) материалов на сайте https://construction-calc.ru |
Особенности древесины как материала
1. Анизотропия. Простыми словами, древесина — неоднородный материал, свойства которого зависят от ориентации волокон, расположенных вдоль ствола. Прочность вдоль волокон в 5–10 раз выше, чем поперёк. Это влияет на размещение элементов и расчёт соединений.
| Направление волокон в древесине | Прочностные характеристики разных пород древесины |
2. Влажность. При высыхании древесина уменьшается в объёме (усушка до 10–15%). Высокая влажность снижает прочность и способствует гниению. Для конструктивных элементов допустимая влажность — не более 14%.
| Коробление древесины при сушке (изменение геометрических форм и размеров) |
3. Биологические угрозы. Грибок, насекомые, плесень требуют обработки антисептиками, что также учитывается в проектировании. Так например, согласно СП 31-105-2002 деревянные элементы конструкций, отметка низа которых в проектном положении ниже планировочной отметки земли или превышает ее менее чем на 250 мм и элементы деревянного каркаса перекрытий, опирающиеся на бетон или кладку, рекомендуется изготовлять из обработанных антисептиками пиломатериалов.
| Грибковые поражения древесины и поражение короедами. |
4. Дефекты структуры. Сучки, трещины и косослой снижают несущую способность, приводят к появлению отверстий, через которые уходит тепло, ухудшают устойчивость дерева к нагрузкам, каркас может деформироваться. Дефекты могут быть заложены ещё в процессе роста дерева или появиться на этапах заготовки, транспортировки и хранения. В расчётах применяют поправочные коэффициенты.
| Пороки древесины | Пороки древесины |
Основные принципы расчёта
1. Определение нагрузок.
Это первый и фундаментальный этап. Нагрузки делятся по характеру воздействия и продолжительности.
По продолжительности:
1. Постоянные нагрузки - вес самих деревянных элементов (балок, стоек, стропил); вес кровельного "пирога", утеплителя; вес перекрытий (доски, лаги); вес стационарных инженерных конструкций и оборудования; вес отделочных материалов (стяжка, гипсокартон и т.д.).
2. Временные нагрузки делятся на длительные и кратковременные.
Длительные - вес стационарного оборудования, перегородок, складов.
Кратковременные также делятся на несколько видов:
- полезные (эксплуатационные): нагрузка от людей, мебели, бытовой техники в жилых зданиях и в зависимости от назначения помещения имеют разные значения.
- снеговые: зависят от региона, уклона кровли, формы здания. Определяются по картам снеговых районов и формулам из СП (Сводов правил).
- ветровые: зависят от региона, высоты здания, типа местности, аэродинамических коэффициентов. Также определяются по нормам.
- особые: сейсмические, взрывные и т.д. (в обычных зданиях могут не учитываться).
Важно: все нагрузки собираются на грузовую площадь, которая передается на рассчитываемый элемент.
| Различные виды нагрузок на здания. | Расчет снеговой нагрузки в программе ВеСТ (SCAD Office). |
2. Расчёт на прочность и жёсткость.
Расчет деревянных конструкций ведется по методу предельных состояний. Предельное состояние — это такое состояние конструкции, при котором она перестает удовлетворять требованиям эксплуатации (теряет способность сопротивляться нагрузкам, получает недопустимые деформации или повреждения).
Существует две группы предельных состояний:
1. Предельные состояния по несущей способности (прочность, устойчивость). Это проверка, что напряжения в элементе не превышают допустимых значений для конкретного сорта древесины и конструкция не должна разрушаться или терять устойчивость.
Для изгибаемых элементов (балки, лаги): σ = M / Wₙₜ ≤ Rᵢ * mᵢ * mᵦ..., где: σ — расчетное напряжение от изгиба; M — максимальный изгибающий момент; Wₙₜ — момент сопротивления нетто (с учетом ослаблений, например, врубками или отверстиями); Rᵢ — расчетное сопротивление древесины изгибу (зависит от породы и сорта); mᵢ, mᵦ... — коэффициенты, учитывающие условия работы (длительность нагрузки, влажность, температура и пр.).
Для растянутых элементов: σ = N / Aₙₜ ≤ Rₚ, где Rₚ — расчетное сопротивление растяжению.
Для сжатых элементов (без учета устойчивости): σ = N / A ≤ Rс, где Rс — расчетное сопротивление сжатию.
2. Предельные состояния по пригодности к нормальной эксплуатации (жесткость). Это проверка, что напряжения в элементе не превышают допустимых значений для конкретного сорта древесины и конструкция не должна получать чрезмерные прогибы или колебания (например, для балок перекрытий — не более 1/250 от длины пролёта).
f ≤ fₚᵣ, где: f — расчетный полный прогиб элемента от нормативных нагрузок; fₚᵣ — предельный прогиб, установленный нормами.
| Результаты проверки деревянной фермы в SCAD Office. | Расчет деревянной фермы в Декор (SCAD Office) |
| Анализ несущей способности сечения в Декор (SCAD Office) | Калькулятор однопролетной деревянной балки на сайте https://construction-calc.ru/ |
3. Расчёт соединений.
Соединения — часто самые сложные и ответственные узлы. Выполняются следующие расчеты:
Расчет на смятие древесины: проверяется, чтобы напряжение смятия под соединительным элементом (болтом, нагелем) не превышало расчетного сопротивления смятию. σ = N / A ≤ Rсₘ
Расчет на изгиб соединительных элементов: для работающих на изгиб нагелей, шурупов, болтов.
Расчет на срез соединительных элементов: проверяется, чтобы скалывающие усилия в древесине (например, в лобовых врубках) или срез в металлическом элементе (болте) были допустимы.
Учет ослабления сечения: все отверстия под болты, врубки ослабляют сечение. Расчет ведется по нетто-сечению (за вычетом ослаблений).
Коррозионная стойкость: металлические крепежные элементы (пластины, болты, саморезы) должны быть защищены (оцинкованы) в соответствии с агрессивностью среды эксплуатации.
| Проверка соединения на нагелях в Декор (SCAD Office). | Проверка опорного узла фермы в Декор (SCAD Office). |
Нормативы и стандарты
Соблюдение нормативов — основа для строительства безопасного, теплого и долговечного каркасного дома. Ниже перечислены ключевые документы, которые регулируют проектирование и расчет каркасных домов и деревянных конструкций в целом.
1. СП 64.13330.2017. Деревянные конструкции: описывает методы проектирования и расчёта конструкций из цельной и клееной древесины, устанавливает общие принципы и методы расчёта несущей способности и деформативности деревянных элементов и соединений.
| Величины деформаций соединений по СП 64.13330.2017. | Расстановка стальных нагелей по СП 64.13330.2017 |
2. СП 20.13330.2016. Нагрузки и воздействия: устанавливает требования по назначению нагрузок, воздействий и их сочетаний, которые учитываются при расчётах зданий и сооружений по предельным состояниям первой и второй групп. Необходимо также отметить, что расчёты ведутся с использованием коэффициентов надёжности, учитывающих долговременность нагрузок и условия эксплуатации.
| Некоторые значения нормативных нагрузок. | Схема снеговой нагрузки на двускатные покрытия. |
| Зависимость значение веса снега от снегового района . |
3. СП 352.1325800.2017 и СП 31-105-2002: своды правил, распространяющиеся исключительно на проектирование, строительство и реконструкцию одноквартирных жилых зданий с деревянным каркасом, отдельно стоящих, с количеством этажей не более чем три. Они носят рекомендательный характер и описывают типовые (готовые) проектные решения к конкретным видам нагрузкам.
| Угловое соединение несущих стен по СП 31-105-2002. | Устройство карниза более 300 мм по СП 31-105-2002. |
Примеры типовых конструкций
1. Балки перекрытий и балки стропильной системы
Расчёт ведется как на изгиб: определяют момент сопротивления сечения, сравнивают с максимальным изгибающим моментом. Учитывают снеговую постоянную, эксплуатационную и снеговую нагрузку, угол наклона, распорные усилия.
2. Опорные колонны и стойки каркаса
Проверку ведут на сжатие и устойчивость. Для элементов большой длины критичен расчёт на продольный изгиб. Как правило, расчет колонн на сжатие и устойчивость ведут по заранее определяемым опорным реакциям от приложенных нагрузок от вышерасположенных баллок.
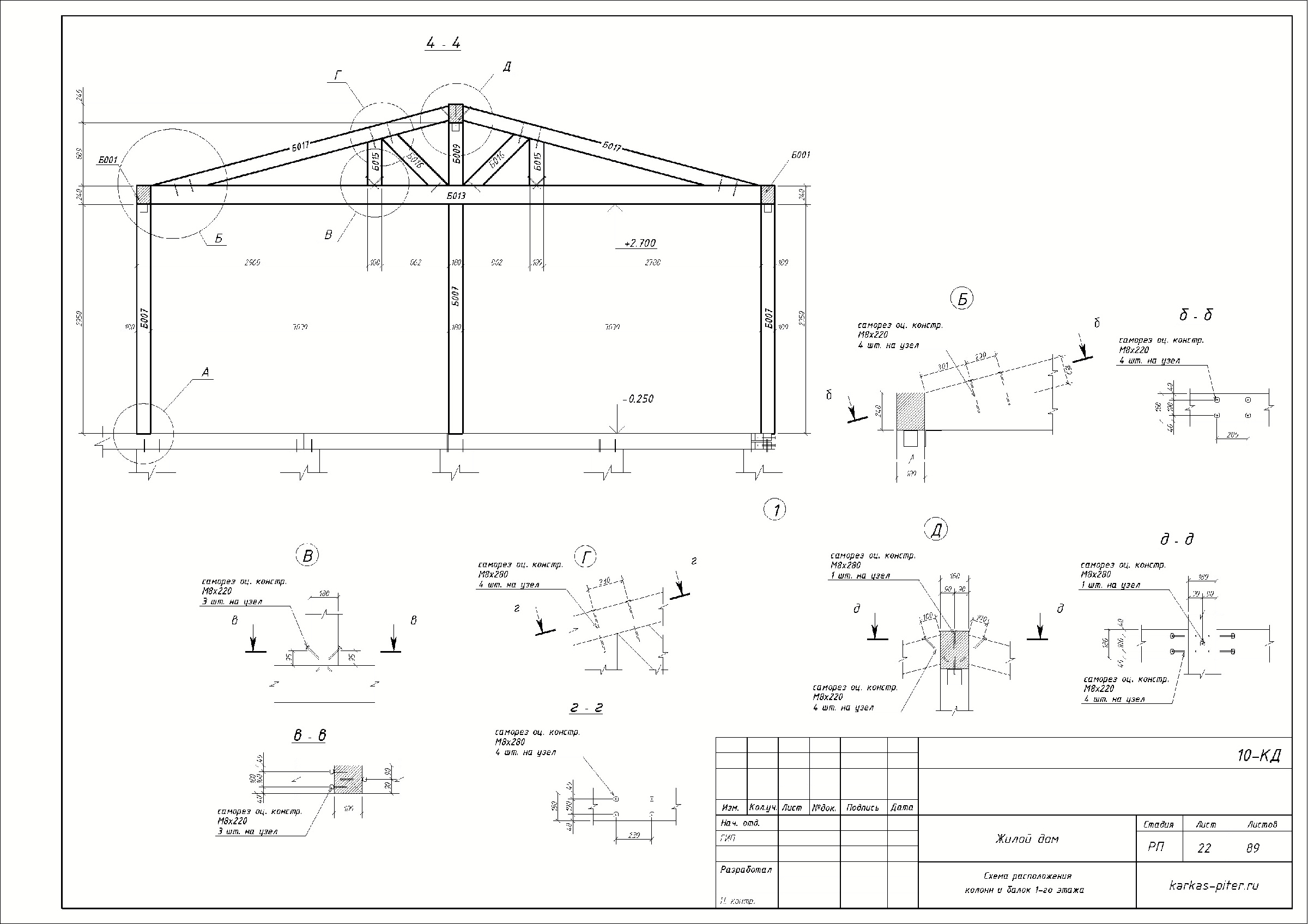
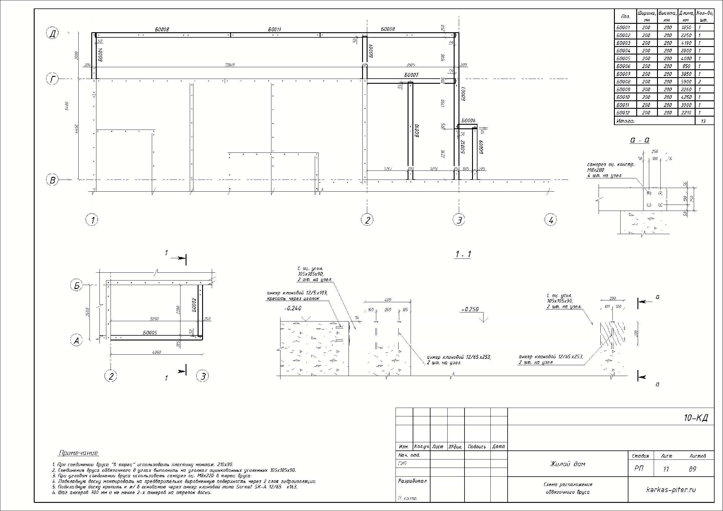
| BIM-модель деревянного каркасного дома в Tekla Structures. | Чертеж общего вида здания. |
| Схемы расположения колонн и балок и их соединений. | Схемы расположения колонн и балок и их соединений. |
Заключение
Расчёт деревянных конструкций — баланс между безопасностью, экономией и учётом уникальных свойств материала. Современные методы (включая ПО для конечно-элементного анализа) упрощают процесс, но не отменяют необходимости понимания основ. Грамотный инженер всегда комбинирует нормативные требования с практическим опытом, чтобы создать надёжную и долговечную конструкцию.
